Basement
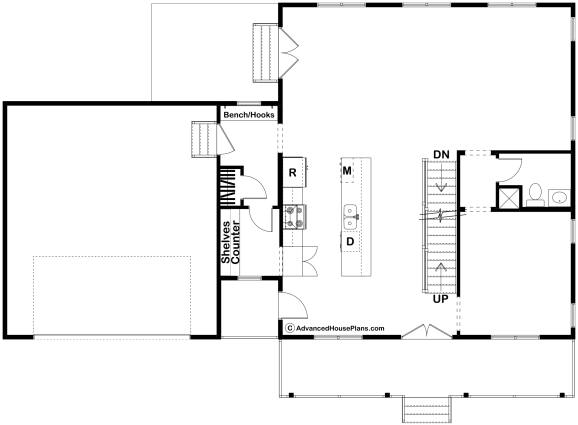
Main Floor
Second Floor
Notice: The system will save your progress when switching between floors.
Adding Furniture
Start by clicking on the furniture in the left menu to spawn a furniture piece.
Moving Furniture
Click and drag the furniture around the plan to position it.
Rotating Furniture
Use the Spacebar to rotate the selected furniture piece.
Fine Adjustments
Use the arrow keys to fine adjust the position of the selected furniture piece.